Create Your First Project
Start adding your projects to your portfolio. Click on "Manage Projects" to get started
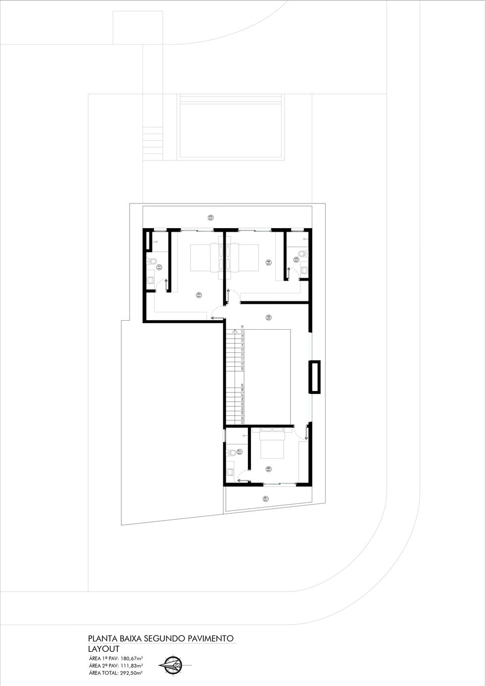
Residência G26
Tipo de projeto
Local
A residência G26 é dividida por dois pavimentos onde o térreo contempla as áreas sociais, lavabo, lavanderia, além de uma suíte com vista para o jardim. Ela conta com mais três suítes, no segundo pavimento, sendo duas delas com
vista privilegiada para o lago. A casa também oferece um amplo espaço para garagem no pavimento térreo.
O layout da residência foi projetado com foco na integração das áreas sociais e externas, considerando a conexão com o espaço gourmet, jantar, estar e a piscina com píer dando acesso ao lago. Elaborado pensando em ambientes onde os usuários possam criar momentos de convivência, seja no dia a dia ou em jantares especiais com amigos.











